糖卜虎中餐廳裝修工程
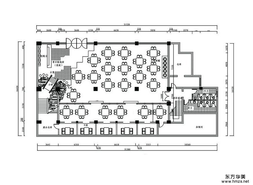
項目名稱 | 糖卜虎中餐廳裝修工程 | 行業(yè)屬性 | 酒店/餐飲/會所 |
項目地址 | 北京市海淀區(qū)銀網(wǎng)中心 | 項目造價 | 23.6萬 |
主關鍵詞 |

▄原建筑結構分析: 設計師采用自然純樸而不失典雅的設計手法,通過材質和色彩的極致搭配。給顧客營造了雅致舒適的就餐環(huán)境,雖然基本采用的是暗色調,卻沒有壓抑的感覺,反而突顯了古樸與沉靜的優(yōu)雅氣質。運用好似天然的墻面造型和黑色鐵藝展示架,突顯工業(yè)風格的裝修風格,營造不一樣的氛圍,給你不一樣的體驗。

▄設計需求: 設計師采用自然淳樸卻又不失典雅的設計手法,通過材質及色彩的搭配使用,給予顧客營造了雅致的就餐環(huán)境,雖然基本采用的是暗色調,卻沒有壓抑的感覺,反而給人以古樸、沉靜的舒適的優(yōu)雅感覺。
▄設計風格定位: 運用好似天然的墻面造型和黑色鐵藝展示架,突顯工業(yè)風格的裝修風格,營造不一樣的氛圍,給你不一樣的體驗。